200 000 €
1 005 € / m²

200m² - hypercentre - 1000€/m²

200m² - hypercentre - 1000€/m²

13 Avenue du Général de Gaulle 78600 Maisons-Laffitte
1 pièce 199 m2 Exclusivité
Référence : 05890
200 000 €
1 005 € / m²

Conditions de vente

200 000 €

Charges immeuble
Non renseignée
Taxe foncière
2 000 € / an

Honoraires à la charge du vendeur

Informations

Étage : 1
Bâtiment de : 4 étages
Copropriété
Construit 1971 - 1990

Description

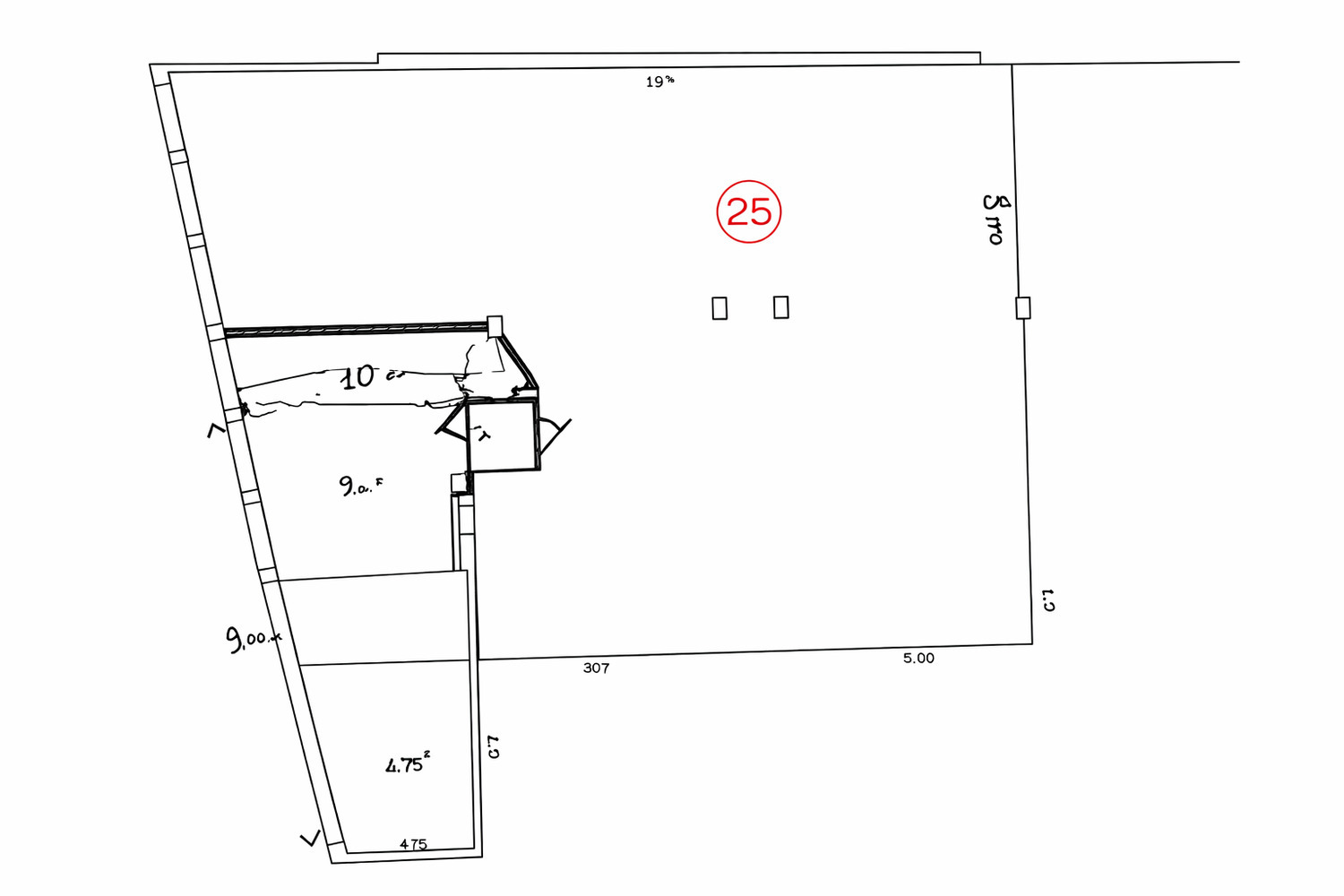
Votre Cabinet La Clef vous propose en exclusivité cette opportunité rare sur le secteur ! En hypercentre de Maisons-Laffitte, face à la gare RER, nous vous proposons ce bien, à usage de bureaux, au premier étage sans ascenseur. Il s’agit d’un plateau dit en "L" pour sa configuration intérieure. Le plateau est vendu sans installation, tout y est à prévoir, vous avez le choix des options ! De nombreuses fenêtres, une quinzaine environ, permettent d’adapter l’agencement intérieur à tous vos besoins.

Également, au besoin, un ascenseur est présent dans la copropriété ; il ne s’arrête simplement pas au premier étage, mais cette option est possible d’être mise en place.

Potentiel projet d’habitation, à voir avec la mairie !

Si vous recherchez un bien, dans un secteur ultra convoité, le tout à 1 000 euros/m² pour vous ou votre entreprise, alors cette opportunité est faite pour vous !
Mis à jour le 13/03/2026

Relevés techniques

Traversant
Oui
Vitrage
Double
Fenêtres ouvertes
-1 dB

Diagnostic de performance énergétique : En cours

Production eau chaude
Individuel Gaz

Production chauffage
Individuel Gaz


Les informations sur les risques auxquels ce bien est exposé sont disponibles sur le site Géorisques : www.georisques.gouv.fr

État et prestations

État général
Travaux à prévoir

Description des travaux à prévoir :
TOUT